Mehrfamilienhaus sucht Handwerker zum Ausbau und möglicher Top-Rendite bei Vermietung.
Objektart
Adresse
Objektdaten
Informationen
Ausstattung
Details
Dieses charmante Fachwerkhaus aus dem Jahr 1790 vereint historischen Charakter mit attraktiven Entwicklungsmöglichkeiten. Mit etwas handwerklichem Geschick lässt sich hier ein renditestarkes Mehrfamilienhaus mit besonderem Flair realisieren.
In den vergangenen Jahren wurden bereits Sanierungsmaßnahmen vorgenommen, unter anderem an der Fassade. Auch im Inneren wurden die Wohnungen teilweise renoviert, sodass eine solide Basis für weitere Optimierungen vorhanden ist.
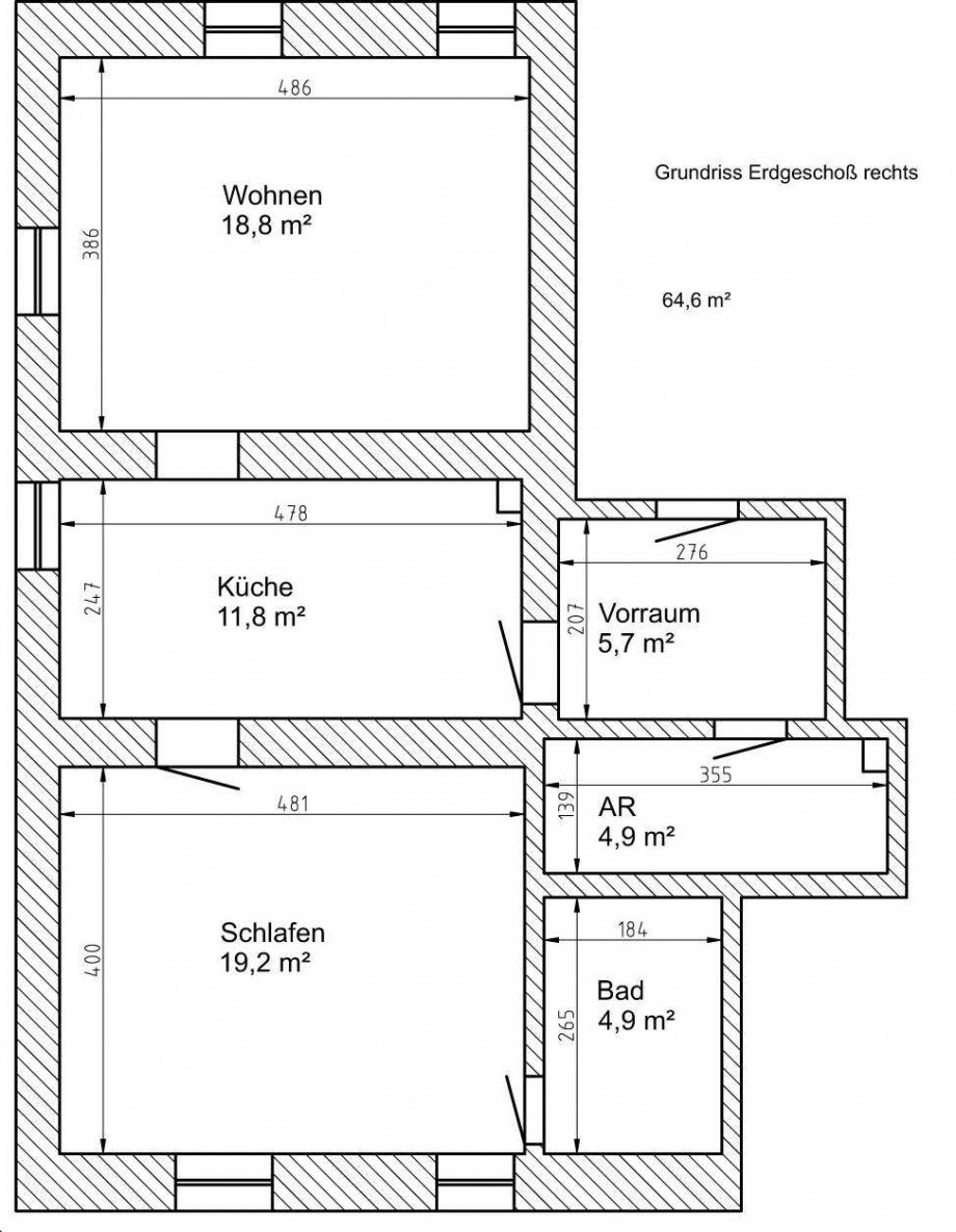
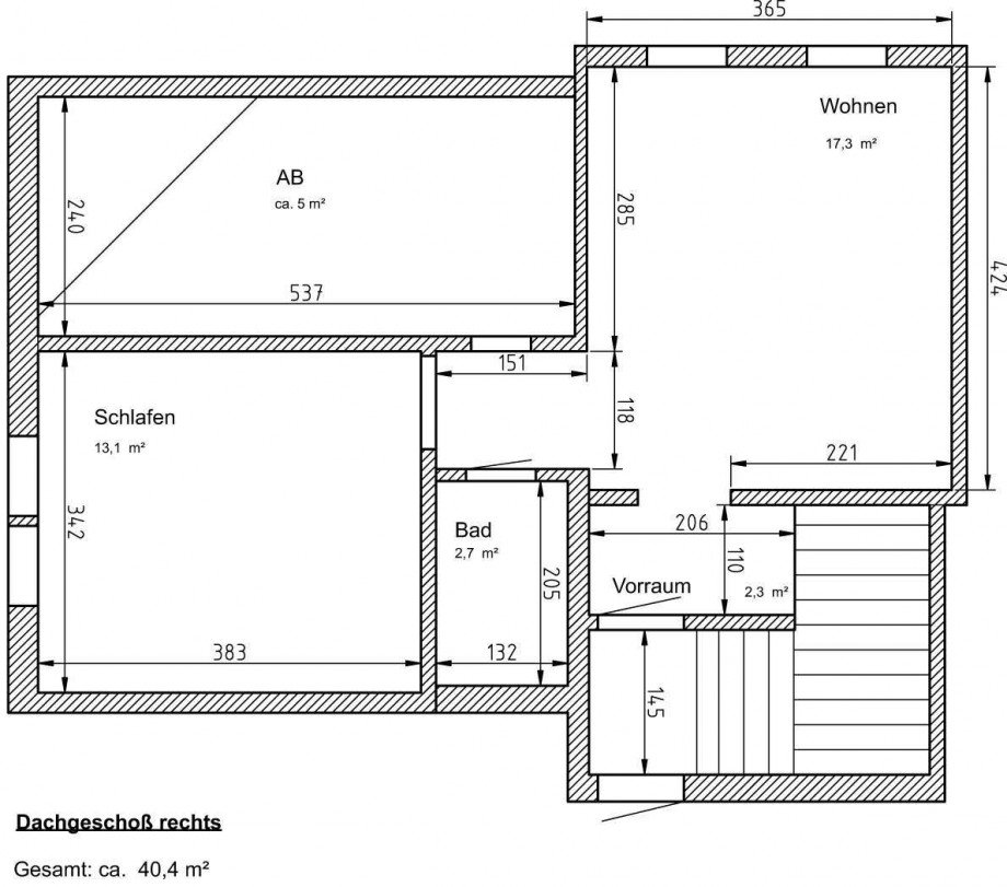
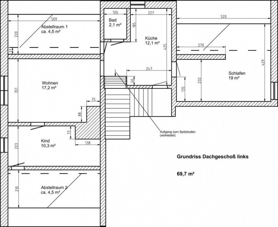
Das Objekt verfügt über vier Wohneinheiten mit Wohnflächen zwischen ca. 36 m² und 65 m², verteilt auf 1 bis 3 Zimmer. Diese Größen bieten eine ideale Grundlage für eine nachhaltige Vermietung.
Stellplätze auf dem eigenen Grundstück runden das Angebot komfortabel ab.
An vielen Stellen ist das Baujahr noch spürbar - sichtbare Details und die typische Fachwerkarchitektur verleihen dem Haus seinen unverwechselbaren Charme. Gleichzeitig eröffnet die Immobilie Raum für individuelle Gestaltungsideen und Wertsteigerung.
Überzeugen Sie sich selbst bei einer persönlichen Besichtigung von den Möglichkeiten, die dieses besondere Objekt bietet.
- Zentralheizung Gas
- 4 Wohnungen zu 36m²-63m²
- Großes Treppenhaus
- Stellplätze auf dem Grundstück
- Teilunterkellert
Sanierungen:
- Verklinkerung
- Giebelverkleidung
- Eingangspodest
- Verschieferung
Wettmershagen ist ein Ortsteil von Calberlah im Landkreis Gifhorn und liegt zwischen Wolfsburg-Sülfeld und Meine. Die Städte Gifhorn, Wolfsburg und Braunschweig sind in ca. 18-25 Minuten erreichbar. Einkaufsmöglichkeiten und Einrichtungen des täglichen Bedarfs befinden sich im nahegelegenen Calberlah (ca. 5 Minuten).
Vereinbaren Sie einen unverbindlichen
Besichtigungstermin mit uns! Wir nehmen uns auch gerne am Wochenende Zeit für Sie.
Ihr zuständiger Ansprechpartner ist Herr Timon Erdmann.
Mobil: 0160/97725196
Email: info@lebenswerteimmobilien.de
Spielen auch Sie mit dem Gedanken, Ihre Immobilie zu verkaufen?
Bei Lebenswerte Immobilien verbinden wir erprobtes Fachwissen mit modernen Vermarktungslösungen. Bewährte Erfahrung trifft auf digitale Tools, professionelle Präsentation und persönlichen Service - stets fair, transparent und auf Augenhöhe.
Ob Verkauf oder Kauf - wir begleiten Sie kompetent, engagiert und zuverlässig, damit Ihr Immobilienwunsch Wirklichkeit wird.
Bitte geben Sie uns bei Kontaktaufnahme per Email
Ihre Rufnummer (tagsüber) mit an. Herzlichen Dank.
Für die Richtigkeit aller Angaben übernehmen wir keine Haftung, weil sie ausschließlich auf Informationen, die uns von unserem Auftraggeber übermittelt wurden, basieren. Alle Objektdaten wurden sehr sorgfältig nach bestem Wissen zusammengestellt. Irrtümer bleiben vorbehalten.
Energieausweis (Bedarfsausweis)
390,10 kWh / (m²*a) Endenergiebedarf
390,10 kWh / (m²*a) Endenergiebedarf
390,10 kWh / (m²*a) Endenergiebedarf
Weitere Informationen
| Wesentlicher Energieträger | Gas |
| Energieausweis Jahrgang | ab dem 1.5.2014 |
| Energieausweis Werteklasse | H |
| Energieausweis Baujahr | 1790 |
| Energieausweis Gebäudeart | Wohngebäude |
| Heizung | Zentralheizung |
| Befeuerung | Gas |
Ich bin damit einverstanden, dass mir Karten von Google angezeigt werden. Es gelten die Datenschutzbedingungen von Google (https://policies.google.com/privacy).
Ich bin einverstanden