Attraktives Mehrfamilienhaus mit 4 Einheiten, Top-Lage und Mietpotenzial!
Objektart
Adresse
Objektdaten
Informationen
Ausstattung
Details
Zum Verkauf steht ein saniertes Mehrfamilienhaus aus der Jahrhundertwende mit insgesamt vier Wohneinheiten.
Die Immobilie bietet rund 240 m² Wohnfläche, verteilt auf 12 Zimmer, und wurde im Jahr 2026 mit viel Sorgfalt modernisiert. Heute präsentiert sich das Objekt in einem exzellenten, zeitgemäßen Zustand und verbindet auf gelungene Weise den klassischen Altbau-Charme mit den Ansprüchen modernen Wohnens.
Bereits beim Betreten des Hauses wird der hohe Qualitätsanspruch deutlich: Der Eingangsbereich sowie der Hausflur wurden stilvoll neu gestaltet und vermitteln einen gepflegten und einladenden Gesamteindruck. Historische Elemente wurden behutsam erhalten und durch moderne Ausstattungsdetails ergänzt, wodurch eine besondere Wohnatmosphäre entsteht, die sowohl Mieter als auch Eigennutzer anspricht.
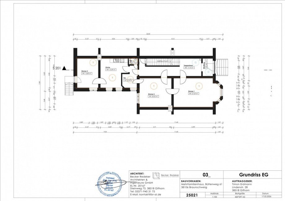
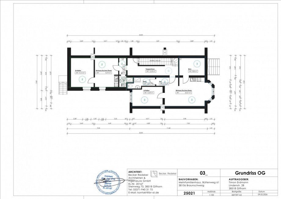
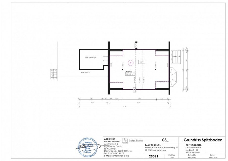
Die Immobilie überzeugt durch eine durchdachte und attraktive Aufteilung der vier Wohneinheiten. Im Erdgeschoss befindet sich eine Wohnung mit direktem Zugang zum Garten, die derzeit monatliche Mieteinnahmen in Höhe von 868,00 EUR erzielt. Das 1. Obergeschoss umfasst eine Zwei-Zimmer-Wohnung und eine Drei-Zimmer-Wohnung, die aktuell noch nicht vermietet sind und somit attraktives Mietsteigerungspotenzial bieten. Hier kann der Käufer die Mieten individuell am aktuellen Marktniveau ausrichten oder die Einheiten flexibel selbst nutzen. Das Dachgeschoss rundet das Angebot mit einer großzügigen 3-Zimmer-Wohnung samt Dachterrasse ab, welche aktuell monatliche Mieteinnahmen von 748,00 EUR generiert, und unterstreicht die vielseitigen Nutzungsmöglichkeiten dieser Immobilie.
Sowohl als renditestarkes Investment als auch zur teilweisen oder vollständigen Eigennutzung.
Wohnung 1 EG: ca. 84,00 m² mit 4 Zimmern
Wohnung 2 OG: ca. 36,00 m² mit 2 Zimmern
Wohnung 3 OG: ca. 58,00 m² mit 3 Zimmern
Wohnung 4 DG: ca. 62,00 m² mit 3 Zimmern
- teilsaniert 2026
- hohe Abschreibungsmöglichkeiten
- aufgeteilt nach WEG
- 4 Wohneinheiten
- Gartenbereich
- Dachterrasse
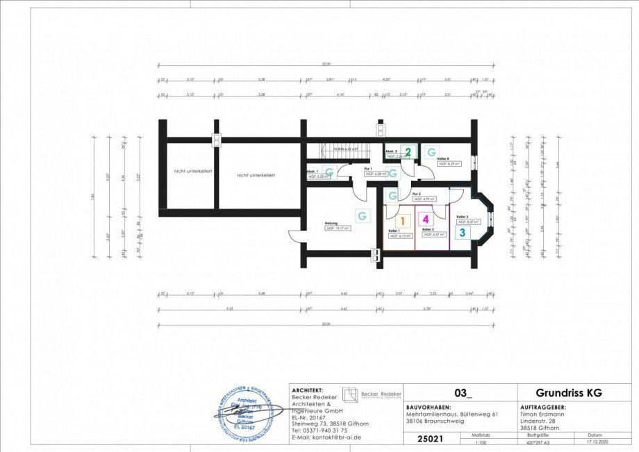
- voll unterkellertes Gebäude
Das angebotene Mehrfamilienhaus befindet sich in einer besonders gefragten und ruhigen Wohnlage von Braunschweig, in unmittelbarer Nähe zur Universität. Die Innenstadt ist sowohl mit öffentlichen Verkehrsmitteln als auch mit dem Fahrrad oder Auto schnell und bequem erreichbar.
Einkaufsmöglichkeiten für den täglichen Bedarf, Ärzte, Banken, Kindergärten sowie Schulen befinden sich in direkter Umgebung und sind fußläufig oder in wenigen Minuten erreichbar. Die Lage überzeugt durch eine ideale Kombination aus urbaner Nähe und angenehmem Wohnumfeld.
Vereinbaren Sie einen unverbindlichen
Besichtigungstermin mit uns! Wir nehmen uns auch gerne am Wochenende Zeit für Sie.
Ihr zuständiger Ansprechpartner ist Herr Timon Erdmann.
Mobil: 0160/97725196
Email: info@lebenswerteimmobilien.de
Spielen auch Sie mit dem Gedanken, Ihre Immobilie zu verkaufen?
Bei Lebenswerte Immobilien verbinden wir erprobtes Fachwissen mit modernen Vermarktungslösungen. Bewährte Erfahrung trifft auf digitale Tools, professionelle Präsentation und persönlichen Service - stets fair, transparent und auf Augenhöhe.
Ob Verkauf oder Kauf - wir begleiten Sie kompetent, engagiert und zuverlässig, damit Ihr Immobilienwunsch Wirklichkeit wird.
Bitte geben Sie uns bei Kontaktaufnahme per Email
Ihre Rufnummer (tagsüber) mit an. Herzlichen Dank.
Für die Richtigkeit aller Angaben übernehmen wir keine Haftung, weil sie ausschließlich auf Informationen, die uns von unserem Auftraggeber übermittelt wurden, basieren. Alle Objektdaten wurden sehr sorgfältig nach bestem Wissen zusammengestellt. Irrtümer bleiben vorbehalten.
Energieausweis (Bedarfsausweis)
80,60 kWh / (m²*a) Endenergiebedarf
80,60 kWh / (m²*a) Endenergiebedarf
80,60 kWh / (m²*a) Endenergiebedarf
Weitere Informationen
| Wesentlicher Energieträger | Gas |
| Energieausweis Ausstelldatum | 2018-06-15 |
| Energieausweis gültig bis | 14.06.2028 |
| Energieausweis Jahrgang | ab dem 1.5.2014 |
| Energieausweis Werteklasse | C |
| Energieausweis Baujahr | 1910 |
| Energieausweis Gebäudeart | Wohngebäude |
| Heizung | Zentralheizung |
| Befeuerung | Gas |
Ich bin damit einverstanden, dass mir Karten von Google angezeigt werden. Es gelten die Datenschutzbedingungen von Google (https://policies.google.com/privacy).
Ich bin einverstanden